Search

Leave a Message

Thank you for your message. I will be in touch with you shortly.

Explore Our Properties

Property Description

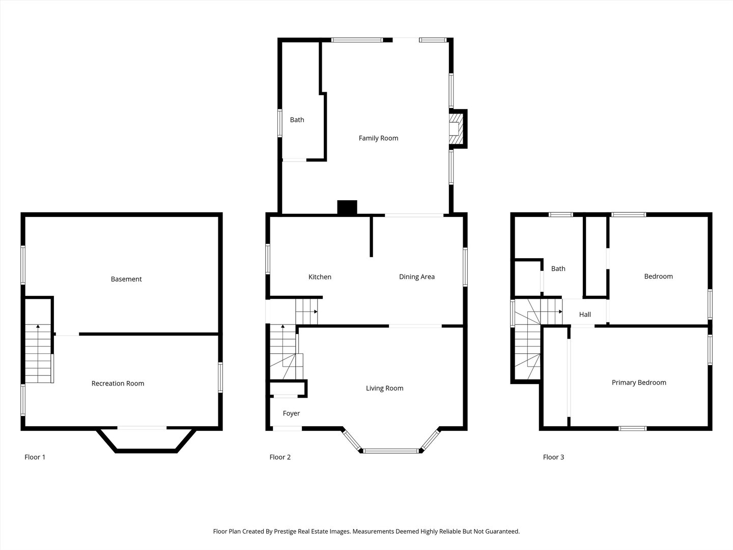
Welcome to this charming brick Georgian nestled on a quiet block in Riverdale. This well-maintained 2-bedroom, 2-bath home blends classic character with modern updates. Step inside to find a bright and inviting living space that flows into a beautifully updated kitchen featuring granite countertops, stainless steel appliances, and contemporary cabinetry-perfect for everyday living and entertaining. Upstairs, the generously sized bedrooms offer comfortable retreats with ample natural light. The finished basement expands your living space with a cozy family room ideal for relaxing, movie nights, or hosting guests, along with additional storage and flexibility for a home office, gym, or recreation area. Outside, enjoy the benefits of a solid brick exterior and a yard ready for summer gatherings or gardening. Conveniently located near parks, schools, shopping, and major transportation routes, this home offers both comfort and accessibility. A great opportunity for homeowners or investors alike-schedule your showing today! Home is being sold as-is.

Overview

Property Status
For Sale
MLS ID
12592061
Property Type
Residential
Year Built
1949

Features & Amenities

Architecture Styles
Bungalow
Garage Spaces
2.0
Water Source
Public
Parking
Off Alley, Yes, Detached, Garage
Heat Type
Natural Gas
Air Conditioning
Central Air
Sewer
Public Sewer
School District
205
Sales Price
$199,999
Real Estate Tax
$2,855/yr

Downloads

14214 S Parnell Avenue

Schedule a Tour

I would love to help you see this beautiful home! As a full-service brokerage, I can help you tour. Please submit an offer, and answer questions about the buying process.

Thank you

for your interest in 14214 S Parnell Avenue, Riverdale, IL 60827

14214 S Parnell Avenue
Navigate

Mortgage Calculator

Estimate your monthly mortgage payment, including the principal and interest, property taxes, and HOA. Adjust the values to generate a more accurate rate.
$0,000 Your Payment 20 15 65
$0,000 Your Payment

I'm Interested In

14214 S Parnell Avenue

or
  • CallAaron Gaines

    License #481.010488

    (708) 765-2620
  • Featured Homes

    Standout Listings for Every Lifestyle

    Handpicked properties showcasing the best in location, design, and value.

    • 8226 S Drexel Avenue Active Under Contract

      $700,000

      8226 S Drexel Avenue, Chicago, IL 60619

    • 322 Central Avenue For Sale

      $332,999

      322 Central Avenue, Matteson, IL 60443

      • 3 Beds
      • 3 Baths
      • 1,840 Sq.Ft.
    • 9038 Mansfield Drive Pending

      $278,000

      9038 Mansfield Drive, Tinley Park, IL 60487

      • 2 Beds
      • 3 Baths
      • 1,689 Sq.Ft.
    • 19558 S Harlem Avenue Unit: 5 Active Under Contract

      $245,000

      19558 S Harlem Avenue Unit: 5, Frankfort, IL 60423

      • 1,250 Sq.Ft.
    • 14214 S Parnell Avenue For Sale

      $199,999

      14214 S Parnell Avenue, Riverdale, IL 60827

      • 2 Beds
      • 2 Baths
      • 1,266 Sq.Ft.
    • 14214 S Parnell Avenue For Sale

      $199,999

      14214 S Parnell Avenue, Riverdale, IL 60827

      • 2 Beds
      • 2 Baths
      • 1,266 Sq.Ft.
    • 7535 S Vernon Avenue For Sale

      $179,999

      7535 S Vernon Avenue, Chicago, IL 60619

      • 4 Beds
      • 2 Baths
      • 1,969 Sq.Ft.
    • 506 Wildwood Drive Active Under Contract

      $160,000

      506 Wildwood Drive, Park Forest, IL 60466

      • 3 Beds
      • 2 Baths
      • 1,170 Sq.Ft.
    • 310 W 105th Street Active Under Contract

      $154,999

      310 W 105th Street, Chicago, IL 60628

      • 4 Beds
      • 2 Baths
    • 2900 175th Street For Sale

      $149,999

      2900 175th Street, Hazel Crest, IL 60429

      • 3 Beds
      • 2 Baths
      • 1,775 Sq.Ft.
    • 2900 175th Street For Sale

      $149,999

      2900 175th Street, Hazel Crest, IL 60429

      • 3 Beds
      • 2 Baths
      • 1,775 Sq.Ft.
    • 3509 Birchwood Drive For Sale

      $149,999

      3509 Birchwood Drive, Hazel Crest, IL 60429

      • 3 Beds
      • 2 Baths
      • 1,228 Sq.Ft.
    • 10436 S Calumet Avenue Active Under Contract

      $134,999

      10436 S Calumet Avenue, Chicago, IL 60628

      • 3 Beds
      • 2 Baths
      • 3,750 Sq.Ft.
    • 1601 Faithorn Avenue For Sale

      $110,000

      1601 Faithorn Avenue, Crete, IL 60417

    • 18340 CHERRY CREEK Drive Unit: 7 For Sale

      $105,999

      18340 CHERRY CREEK Drive Unit: 7, Homewood, IL 60430

      • 2 Beds
      • 1 Bath
      • 1,010 Sq.Ft.
    • 312 S Evergreen Avenue Active Under Contract

      $99,999

      312 S Evergreen Avenue, Kankakee, IL 60901

      • 6 Beds
      • 2 Baths
    • 7363 S South Shore Drive Unit: 209 For Sale

      $69,999

      7363 S South Shore Drive Unit: 209, Chicago, IL 60649

      • 1 Bed
      • 1 Bath
      • 800 Sq.Ft.
    • 8338 S Ingleside Avenue Active Under Contract

      $59,999

      8338 S Ingleside Avenue, Chicago, IL 60619

      • 3 Beds
      • 2 Baths
      • 1,106 Sq.Ft.
    • 15032 Winchester Avenue For Sale

      $55,000

      15032 Winchester Avenue, Harvey, IL 60426

      • 3 Beds
      • 1 Bath
      • 990 Sq.Ft.
    • 2273 N 3409th Road For Sale

      $53,000

      2273 N 3409th Road, Ottawa, IL 61350

    • 11641 S Sangamon Street Active Under Contract

      $49,999

      11641 S Sangamon Street, Chicago, IL 60643

      • 3 Beds
      • 1 Bath
      • 1,092 Sq.Ft.
    • 355 W 105th Place Pending

      $44,999

      355 W 105th Place, Chicago, IL 60628

      • 4 Beds
      • 1 Bath
      • 1,088 Sq.Ft.
    • 12242 S Wallace Street For Sale

      $27,000

      12242 S Wallace Street, Chicago, IL 60628

    • 201 E 70th Street For Sale

      $24,500

      201 E 70th Street, Chicago, IL 60637

    • 201 E 70th Street For Sale

      $24,500

      201 E 70th Street, Chicago, IL 60637

    • 6332 S Eggleston Avenue For Sale

      $20,000

      6332 S Eggleston Avenue, Chicago, IL 60621

    • 14423 Davis Avenue For Sale

      $19,999

      14423 Davis Avenue, Blue Island, IL 60406

    • 5943 S May Street For Sale

      $17,000

      5943 S May Street, Chicago, IL 60621

    • 5943 S May Street For Sale

      $16,000

      5943 S May Street, Chicago, IL 60621

    • 12129 S Parnell Avenue For Sale

      $13,999

      12129 S Parnell Avenue, Chicago, IL 60628

    • 12210 S Union Avenue For Sale

      $10,000

      12210 S Union Avenue, Chicago, IL 60628

    • 12017 S Wallace Street For Sale

      $9,499

      12017 S Wallace Street, Chicago, IL 60628

    • 11854 S Lafayette Avenue For Sale

      $5,499

      11854 S Lafayette Avenue, Chicago, IL 60628

    • 11854 S Lafayette Avenue For Sale

      $5,499

      11854 S Lafayette Avenue, Chicago, IL 60628

    View All

    Follow Us On Instagram